房天下>重庆二手房>两江新区二手房>礼嘉二手房>御璟湖山璟云二手房

礼嘉龙湖天街精装叠拼别墅 2+2户型 电梯+花园+地下室

分享

微信扫一扫分享好友
更多分享>

收藏

下载房天下APP
楼盘动态及时知

基本信息
建筑年代2021年
有无电梯
产权性质 个人产权
挂牌时间 2026-01-26
梯户比例 暂无数据
供暖方式 暂无数据
房屋结构 平层
抵押信息 暂无数据
楼层高度 暂无数据
上次交易 暂无数据
房源描述
  • 核心卖点
    咨询电话:杜丽娟
    御璟湖山璟云位于重庆两江新区礼嘉礼贤路,是一座2021年建成的精装修别墅,房本满二,产权清晰,交易便捷。该房源建筑面积232.72平方米,总价398万,单价仅17102元/平,性价比突出。别墅为南朝向,采光充足,居住舒适度高。

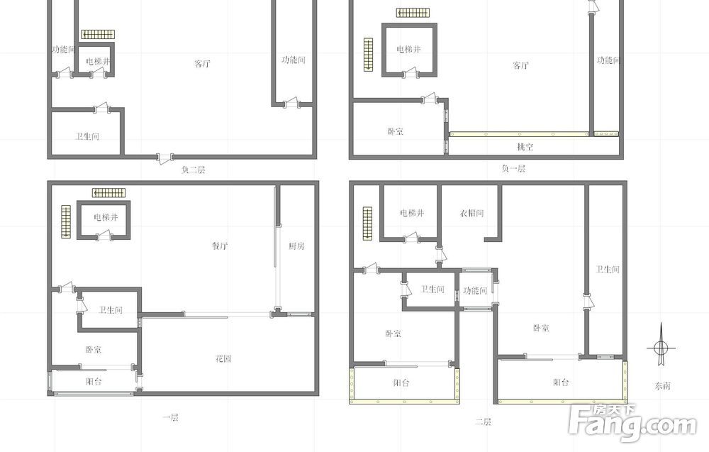
    户型设计为4室2厅4卫1厨1阳台,空间布局合理,满足多口之家或高品质生活需求。地上5层的结构提供了充足的私密性和功能性分区,精装修交付,省去装修烦恼,可直接拎包入住。礼嘉区域发展成熟,配套完善,适合追求高端居住体验的购房者。
  • 业主心态
    适合改善客户,带花园带电梯还有地下室,全新装修,使用面积 300 平,拎包入住。
  • 税费分析
    产权干净,税费清晰,为避免泄露业主信息,欢迎来电咨询了解该房屋详情。
  • 小区配套

    有白云湖公园,礼嘉智慧公园,白云寨公园,北恒企业公园,金海湾公园等,礼嘉天街,ch儿童剧场,elite篮球,礼嘉羽毛球,贝优奇婴儿游泳馆(礼嘉店),百川跆拳道,礼嘉儿童医院,欢乐谷

    交通出行:
    交通出行方便:六号线金山寺站,小区门口就是公交车站,多路公交车通行。
  • 服务介绍
    您好,感谢您浏览我发布的房源,从事房产行业多年,也将长期从事房产行业,对房源特别了解,本着专业的房产知识为您服务,帮您节省时间和精力,希望得到您的信赖.
  • 户型解读
    下叠带电梯 ,2+2的户型,地下室两层楼都有采光井,装修150万,入住时间短,9.9成新,法式奶油风
房源图片
室内图
室内图
室内图
室内图
室内图
室内图
室内图
室内图
室内图
室内图
室内图
室内图
室内图
室内图
室内图
室内图
室内图
室内图
室内图
室内图
户型图
户型图
398
满二满二
4室2厅4卫
户型
232.72平米
建筑面积
17102元/平米
单价
进门朝向
5层
地上层数
精装修
装修程度
小      区
御璟湖山璟云(距6号线金山寺约938米)
区      域
御璟湖山璟云小区信息
参考均价16089元/平米
同比去年↓3.3%
环比上月↓0.09%
收藏
物业类型 别墅
物业费用3.8元/㎡·月
建筑类型叠拼
建筑年代2018年
绿 化 率30%
容 积 率2.72
人车分流
总楼栋数2
总 户 数2
周边配套
免责声明:房源信息由网站用户提供,其真实性、合法性由信息提供者负责,最终以政府部门登记备案为准。本网站不声明或保证内容之正确性和可靠性,购买该房屋时,请谨慎核查。入学情况仅凭历史经验总结,在此不承诺升学事宜。请您在签订合同之前,切勿支付任何形式的费用,以免上当受骗。