房天下>重庆二手房>渝北二手房>中央公园二手房>融创嘉德领馆二手房

大端户联排别墅!实得5百平(带花园加产权车位2个)中央公园

分享

微信扫一扫分享好友
更多分享>

收藏

下载房天下APP
楼盘动态及时知

基本信息
建筑年代2017年
有无电梯
产权性质 个人产权
挂牌时间 2025-07-04
梯户比例 暂无数据
供暖方式 暂无数据
房屋结构 平层
抵押信息 暂无数据
楼层高度 暂无数据
上次交易 暂无数据
房源描述
  • 核心卖点
    小区介绍:小区环境优美,周边配套齐全,交通便利,出行非常方便
    房屋介绍:
    1、 房屋年代:2017年开建
    2、 房屋正气,性价比高
    3、 朝向:东南
    4、 房屋优点:采光充足,视野宽阔
  • 业主心态
    业主很信任我,我能了解业主卖房新的动态。目前市场交易量平稳,政策已经基本稳定,是 入手的好时候。请不要错过性价比高的好房。
  • 小区配套
    位置:小区地理位置佳,绿化率高,居民素质高
    配套:有健身器材,小型篮球场,可供小区居民使用
    车位:停车位充足,建有地上停车场和地下车库
    保安:小区内24保安巡逻
  • 服务介绍
    本人从事房地产多年,公司有大量好房源,欢迎进入我的店铺查看,欢迎随时电话咨询,相信我的专业,为您置业安家保驾护航。
房源图片
室内图
室内图
室内图
室内图
室内图
室内图
室内图
室内图
室内图
室内图
室内图
室内图
室内图
室内图
室内图
室内图
室内图
室内图
室内图
室内图
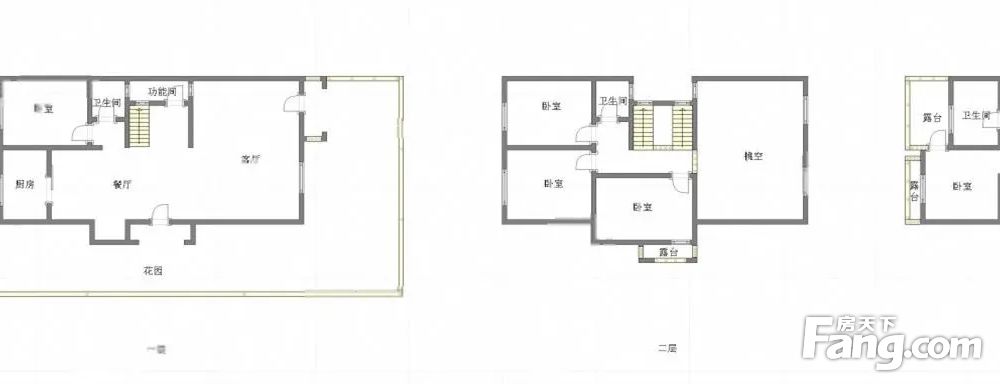
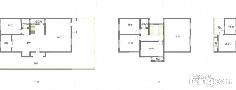
户型图
户型图
418
满二满二
6室2厅5卫
户型
218.46平米
建筑面积
19134元/平米
单价
朝向
底层
楼层(共1层)
毛坯
装修
小      区
融创嘉德领馆(距9号线兰桂大道站约96米)
区      域
融创嘉德领馆小区信息
参考均价15375元/平米
同比去年↓9.91%
环比上月↑0.73%
收藏
物业类型 住宅
物业费用2元/㎡·月
建筑类型塔楼
产权年限50
建筑年代2014年
绿 化 率31.5%
容 积 率2.9
人车分流
总楼栋数13
总 户 数2570
小区图片
周边配套
免责声明:房源信息由网站用户提供,其真实性、合法性由信息提供者负责,最终以政府部门登记备案为准。本网站不声明或保证内容之正确性和可靠性,购买该房屋时,请谨慎核查。入学情况仅凭历史经验总结,在此不承诺升学事宜。请您在签订合同之前,切勿支付任何形式的费用,以免上当受骗。