房天下>重庆二手房>渝北二手房>空港新城二手房>中航翡翠城二手房

业主急售!中央公园 精装洋房底跃 端户大花园 性价比高

分享

微信扫一扫分享好友
更多分享>

收藏

下载房天下APP
楼盘动态及时知

基本信息
有无电梯
产权性质 个人产权
挂牌时间 2025-10-26
梯户比例 暂无数据
供暖方式 暂无数据
房屋结构 平层
抵押信息 暂无数据
楼层高度 暂无数据
上次交易 暂无数据
房源描述
  • 核心卖点
    相信为您推荐的这套房子您一定会满意,赶快行动吧,先到先得!
    房屋年代∶null,面积∶220.0平方米,朝向∶南
    1. 小区配备高端物业管理,让你享受宾至如归的服务;
    2. 小区人文素质高,是您的居家的绝佳选择;
    3. 小区居住安静舒适,让您拥有高品质的生活环境;
    4. 小区绿化率高,绿树成荫鸟语花香让您随时呼吸到新鲜空气。
  • 业主心态
    业主换房,诚心出售,已委托钥匙在本店,随时可以看房
  • 税费分析
    房子满两年,没得增值税,
    契税:1%(140平以下)。1.5%(140平以上)
    个税:1%
  • 小区配套
    商业:永辉超市,华辰国际,林里3000商圈(即将开业),
    泽科商圈(建设中),盛景天下菜市场 等
    :渝北幼儿园,青苗幼儿园,盛景天下,空港新城,中央公园,渝北,暨华,
    管理校,
    公园:观音山公园,沐仙湖公园,鹿山公园。中央公园,双龙
    湖公园
  • 服务介绍
    尊敬的客户您好,我是到家了冯小兵,从事地产行业10年有余,有着丰富的行业经验,服务热情,周到,专业,真诚,赢得了很多客户的信赖,30%的客户都转介绍客户,希望有机会为您提供置业服务,为您找到满意的家
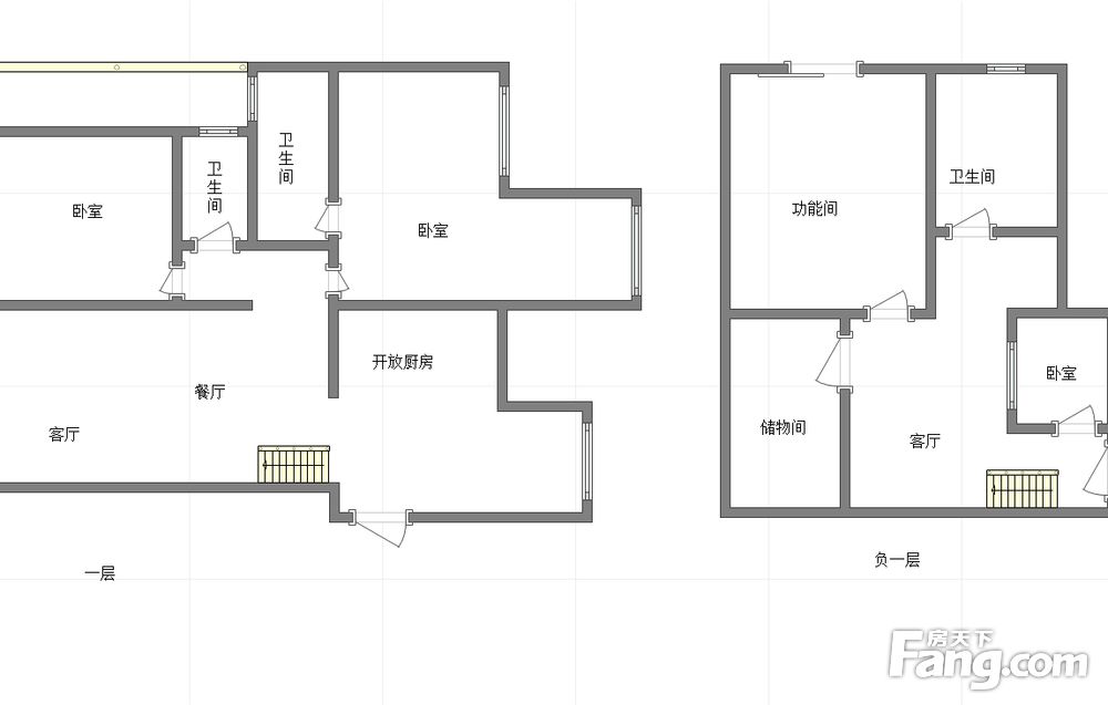
  • 户型解读
    户型:房子是一套端户洋房底跃,户型方正 ,动静分区,南北通透 ,带大花园
    装修:业主住家精装修,保持很好,拧包入住
房源图片
室内图
室内图
室内图
室内图
室内图
室内图
室内图
室内图
室内图
室内图
室内图
室内图
室内图
室内图
室内图
室内图
室内图
室内图
室内图
室内图
小区相关图
小区相关图
小区相关图
小区相关图
小区相关图
小区相关图
小区相关图
小区相关图
小区相关图
小区相关图
小区相关图
小区相关图
小区相关图
小区相关图
小区相关图
小区相关图
小区相关图
小区相关图
户型图
户型图
180
满二满二带花园性价比高配套成熟
5室2厅2卫
户型
220平米
建筑面积
8182元/平米
单价
朝向
底层
楼层(共7层)
精装修
装修
小      区
中航翡翠城(距9号线春华大道站约656米)
区      域
中航翡翠城小区信息
参考均价10366元/平米
同比去年↓2.45%
环比上月↓0.85%
收藏
物业类型 住宅
物业费用2元/㎡·月
建筑类型板楼,塔楼
产权年限50
建筑年代2016年
绿 化 率30%
容 积 率2.17
人车分流
总楼栋数47
总 户 数6707
小区图片
周边配套
免责声明:房源信息由网站用户提供,其真实性、合法性由信息提供者负责,最终以政府部门登记备案为准。本网站不声明或保证内容之正确性和可靠性,购买该房屋时,请谨慎核查。入学情况仅凭历史经验总结,在此不承诺升学事宜。请您在签订合同之前,切勿支付任何形式的费用,以免上当受骗。