房天下>重庆二手房>两江新区二手房>中央公园二手房>鹏润鹿山台二手房

双书包,纯洋房小区大横厅顶跃,实得300多平,280万

分享

微信扫一扫分享好友
更多分享>

收藏

下载房天下APP
楼盘动态及时知

基本信息
有无电梯
产权性质 个人产权
挂牌时间 2025-07-18
梯户比例 暂无数据
供暖方式 暂无数据
房屋结构 平层
抵押信息 暂无数据
楼层高度 暂无数据
上次交易 暂无数据
房源描述
  • 核心卖点
    相信为您推荐的这套房子您一定会满意,赶快行动吧,先到先得!
    房屋年代∶null,面积∶155.11平方米,朝向∶南
    1. 小区配备高端物业管理,让你享受宾至如归的服务;
    2. 小区人文素质高,是您的居家的绝佳选择;
    3. 小区居住安静舒适,让您拥有高品质的生活环境;
    4. 小区绿化率高,绿树成荫鸟语花香让您随时呼吸到新鲜空气。
房源图片
室内图
室内图
室内图
室内图
室内图
室内图
室内图
室内图
室内图
室内图
室内图
室内图
室内图
室内图
室内图
室内图
室内图
室内图
室内图
室内图
小区相关图
小区相关图
小区相关图
小区相关图
小区相关图
小区相关图
小区相关图
小区相关图
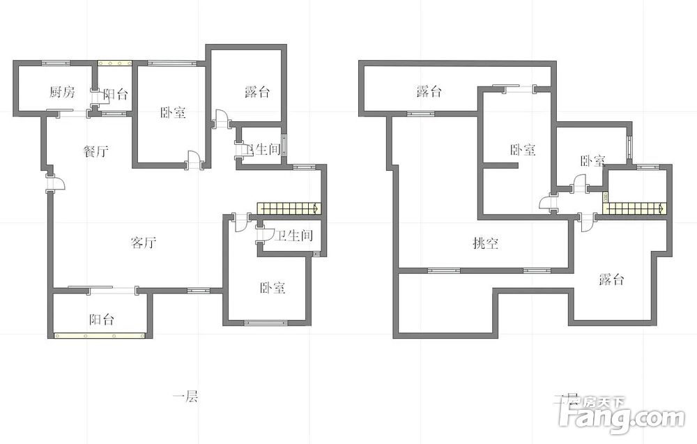
户型图
户型图
275
满二满二
4室2厅2卫
户型
155.11平米
建筑面积
17729元/平米
单价
朝向
顶层
楼层(共6层)
毛坯
装修
小      区
鹏润鹿山台(距9号线中央公园东站约701米)
重庆到家了网络科技有限公司
鹏润鹿山台小区信息
参考均价18613元/平米
同比去年↓2.73%
环比上月↑0.32%
收藏
物业类型 住宅
物业费用3.5元/㎡·月
建筑类型板楼
产权年限50
建筑年代2017年
绿 化 率30.1%
容 积 率1.6
人车分流
总楼栋数30
总 户 数1162
小区图片
周边配套
免责声明:房源信息由网站用户提供,其真实性、合法性由信息提供者负责,最终以政府部门登记备案为准。本网站不声明或保证内容之正确性和可靠性,购买该房屋时,请谨慎核查。入学情况仅凭历史经验总结,在此不承诺升学事宜。请您在签订合同之前,切勿支付任何形式的费用,以免上当受骗。