房天下>重庆二手房>渝北二手房>两路二手房>渝北高屋新区二手房

九曲河纯墅区,上叠带大露台,4个套房设计,户型好

分享

微信扫一扫分享好友
更多分享>

收藏

下载房天下APP
楼盘动态及时知

基本信息
建筑年代2019年
有无电梯
产权性质 个人产权
挂牌时间 2024-11-24
梯户比例 暂无数据
供暖方式 暂无数据
房屋结构 平层
抵押信息 暂无数据
楼层高度 暂无数据
上次交易 暂无数据
房源描述
  • 核心卖点
    相信为您推荐的这套房子您一定会满意,赶快行动吧,先到先得!
    房屋年代∶null,面积∶180.27平方米,朝向∶南北
    1. 小区配备高端物业管理,让你享受宾至如归的服务;
    2. 小区人文素质高,是您的居家的绝佳选择;
    3. 小区居住安静舒适,让您拥有高品质的生活环境;
    4. 小区绿化率高,绿树成荫鸟语花香让您随时呼吸到新鲜空气。
  • 业主心态
    业主很信任我,我能了解业主卖房新的动态。目前市场交易量平稳,政策已经基本稳定,是市场触底入手的好时候。请不要错过性价比高的好房。
  • 小区配套
    位置:小区地理位置佳,绿化率高,居民素质高配套:有健身器材,小型篮球场,可供小区居民使用车位:停车位充足,建有地上停车场和地下车库保安:小区内24保安巡逻
  • 服务介绍
    本人从事房地产多年,公司有大量好房源,欢迎进入我的店铺查看,欢迎随时电话咨询,相信我的专业,为您置业安家保驾护航。
房源图片
室内图
室内图
室内图
室内图
室内图
室内图
室内图
室内图
室内图
室内图
室内图
室内图
室内图
室内图
室内图
室内图
室内图
室内图
室内图
室内图
小区相关图
小区相关图
小区相关图
小区相关图
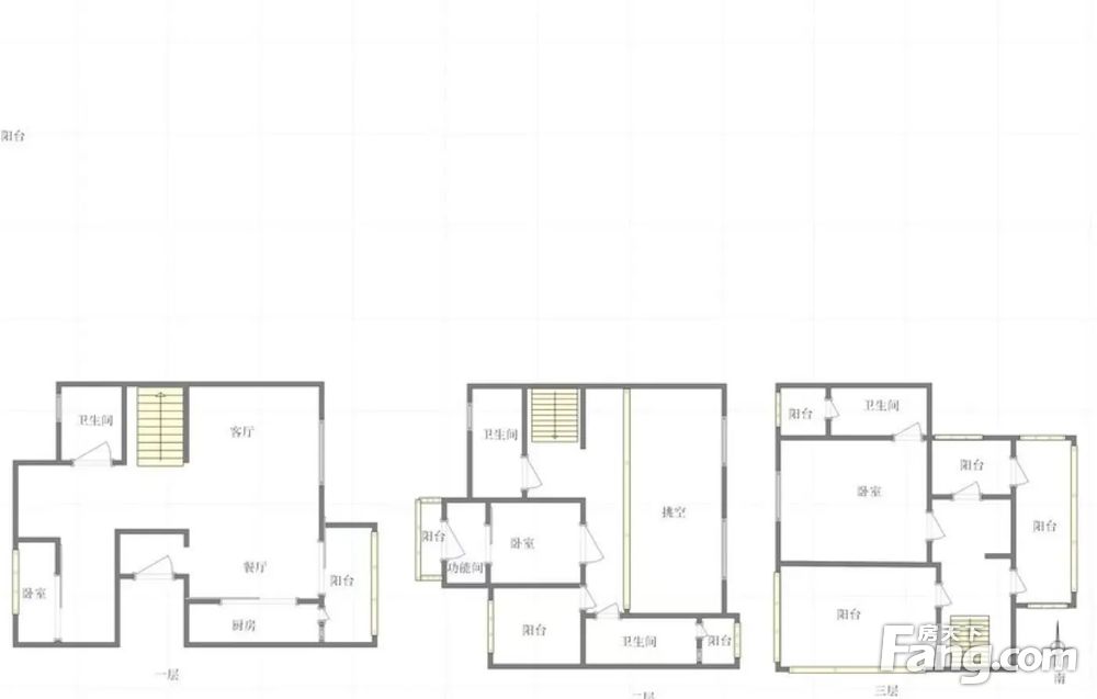
户型图
户型图
285
满二满二
4室2厅3卫
户型
180.27平米
建筑面积
15810元/平米
单价
南北
朝向
顶层
楼层(共3层)
精装修
装修
小      区
渝北高屋新区(距10号线渝北广场站约612米)
区      域
渝北高屋新区小区信息
参考均价13467元/平米
同比去年↓27.11%
环比上月↓3%
收藏
物业类型 住宅
物业费用20元/㎡·月
建筑类型板塔结合
建筑年代2000年
绿 化 率5%
容 积 率1
人车分流
总楼栋数2
总 户 数93
周边配套
免责声明:房源信息由网站用户提供,其真实性、合法性由信息提供者负责,最终以政府部门登记备案为准。本网站不声明或保证内容之正确性和可靠性,购买该房屋时,请谨慎核查。入学情况仅凭历史经验总结,在此不承诺升学事宜。请您在签订合同之前,切勿支付任何形式的费用,以免上当受骗。