房天下>重庆二手房>江北二手房>寸滩二手房>金科太阳海岸二手房

江北 轻轨4号线金科端户联排 200平花园 朝南 双车位 !

分享

微信扫一扫分享好友
更多分享>

收藏

下载房天下APP
楼盘动态及时知

基本信息
建筑年代2014年
有无电梯
产权性质 个人产权
挂牌时间 2025-04-13
梯户比例 暂无数据
供暖方式 暂无数据
房屋结构 平层
抵押信息 暂无数据
楼层高度 3.2
上次交易 暂无数据
房源描述
  • 核心卖点
    尊敬的客户,该产品为江北金科太阳海岸小区 ,小区主打产品是联排 ,双拼 。保证了品质更为纯粹,在重庆市算较好的业主圈层。
    交通;步行轨道7,小区门口也有公交车站,
    商业;小区门口就有能够满足日常生活的各种农生鲜店,干洗之类的。大型商业也能够到达,是金科的巅峰之作,高规格的品质让您尊享品质生活。
  • 业主心态
    业主因工作调动,诚心出售,价格可沟通 ,预约看房。
  • 税费分析
    个税:首套房成交价1%,
    契税:以家庭为单位,首套140㎡及以下成交价1%,140㎡以上成交价1.5%。
    二套140㎡及以下成交价1%,140㎡以上成交价2%。
    三套及以上成交价3%。
    大修基金:80元/㎡(按照建筑面积收取)详情咨询电话:183 2330 8932(微X同号)
  • 小区配套
    金科物业,小区绿化非常好,管家式服务。绿树成荫鸟语花香,让您随时呼吸道新鲜空气
  • 服务介绍
    【1】您所看到的房源为二手房。
    【2】全程接送,陪同看房,全城看房,为您送上轻松愉快的看房旅程。
    【3】经纪人看房不会产生任何费用
    【4】本人专注二手和一手新房183 2330 8932易可添加号
  • 户型解读
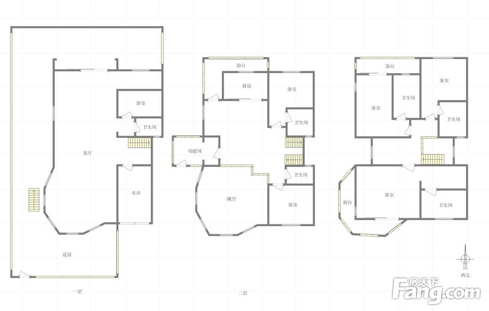
    尊敬的客户,这套端户联排是地上三层 ,端户花园有200平 ,板式结构 ,带双车位。
房源图片
室内图
室内图
室内图
室内图
室内图
室内图
室内图
室内图
室内图
室内图
室内图
室内图
室内图
室内图
室内图
室内图
室内图
室内图
室内图
室内图
室内图
室内图
室内图
室内图
室内图
室内图
室内图
室内图
室内图
室内图
室内图
室内图
室内图
室内图
户型图
户型图
328
6室4厅4卫
户型
389平米
建筑面积
8432元/平米
单价
进门朝向
1层
地上层数
毛坯
装修程度
小      区
金科太阳海岸(距4号线唐家沱站约734米)
区      域
重庆到家了网络科技有限公司
闪电回复
金科太阳海岸小区信息
参考均价8455元/平米
同比去年↓5.96%
环比上月↓2.79%
收藏
物业类型 别墅
物业费用3.5元/㎡·月
建筑类型联排
产权年限50
建筑年代2014年
绿 化 率35%
容 积 率0.79
人车分流
总楼栋数204
总 户 数644
小区图片
周边配套
免责声明:房源信息由网站用户提供,其真实性、合法性由信息提供者负责,最终以政府部门登记备案为准。本网站不声明或保证内容之正确性和可靠性,购买该房屋时,请谨慎核查。入学情况仅凭历史经验总结,在此不承诺升学事宜。请您在签订合同之前,切勿支付任何形式的费用,以免上当受骗。