房天下>重庆二手房>北碚二手房>城南新区二手房>龙湖紫云台别墅二手房

城南新区 龙湖紫云台二组团五房248万

分享

微信扫一扫分享好友
更多分享>

收藏

下载房天下APP
楼盘动态及时知

基本信息
建筑年代2019年
有无电梯
产权性质 个人产权
挂牌时间 2024-11-02
梯户比例 暂无数据
供暖方式 暂无数据
房屋结构 平层
抵押信息 暂无数据
楼层高度 暂无数据
上次交易 暂无数据
房源描述
  • 核心卖点
    如何做到我的承诺:
    一 从事房产事业多年丰富实战经验,可为您做到 零风险置业。
    二 此房或许不能使您达到100%的满意,但我会利用经验,使您买到合适、意愿的房子,让您 快的时间住进心意的房子。
  • 业主心态
    房东置换,诚心出售,价格可以再谈,欢迎看房,随时恭候。
  • 税费分析
    物业费2元到3元一平方。

    购买新房主要税费: 契税:90平以内:1% ;90-124 平收1.5%;124平以上收2%(交房后地税收取)

    注:以上收费仅供参考
  • 小区配套
    位置:小区地理位置佳,绿化率高,居民素质高
    配套:有健身器材,小型篮球场,可供小区居民使用
    车位:停车位充足,建有地上停车场和地下车库
    保安:小区内24保安巡逻
  • 服务介绍
    本人从事房地产多年,公司有大量好房源,欢迎进入我的店铺查看,欢迎随时电话咨询,相信我的专业,为您置业安家保驾护航。
房源图片
室内图
室内图
室内图
室内图
室内图
室内图
室内图
室内图
室内图
室内图
室内图
室内图
室内图
室内图
室内图
室内图
室内图
室内图
室内图
室内图
室内图
室内图
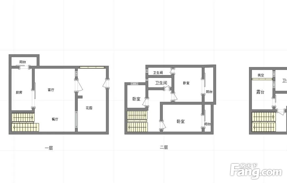
户型图
户型图
248
5室2厅2卫
户型
202平米
建筑面积
12277元/平米
单价
进门朝向
1层
地上层数
精装修
装修程度
区      域
龙湖紫云台别墅小区信息
参考均价9429元/平米
同比去年↓6.3%
环比上月↓0.62%
收藏
物业类型 别墅
物业费用4.2元/㎡·月
建筑类型独栋,联排,双拼
产权年限50
建筑年代2017年
绿 化 率40%
容 积 率1.16
人车分流
总楼栋数92
总 户 数795
小区图片
周边配套
免责声明:房源信息由网站用户提供,其真实性、合法性由信息提供者负责,最终以政府部门登记备案为准。本网站不声明或保证内容之正确性和可靠性,购买该房屋时,请谨慎核查。入学情况仅凭历史经验总结,在此不承诺升学事宜。请您在签订合同之前,切勿支付任何形式的费用,以免上当受骗。