房天下>重庆二手房>渝北二手房>回兴二手房>复地花屿城二手房

复地纯别墅小区 新中式风格 横厅上叠端户 板式结构全套房设计

分享

微信扫一扫分享好友
更多分享>

收藏

下载房天下APP
楼盘动态及时知

基本信息
建筑年代2018年
有无电梯
产权性质 个人产权
挂牌时间 2024-09-29
梯户比例 暂无数据
供暖方式 暂无数据
房屋结构 平层
抵押信息 暂无数据
楼层高度 3.5
上次交易 暂无数据
房源描述
  • 核心卖点
    尊敬的客户,该产品为中央公园的纯别墅小区 ,小区主打产品是联排 ,双拼 类独栋,独栋产品 为集群。保证了品质更为纯粹,在重庆市算较好的业主圈层。
    交通;步行轨道7,小区门口也有公交车站,
    商业;小区门口就有能够满足日常生活的各种农生鲜店,干洗之类的。大型商业也能够到达,
    玫瑰园 ,是融创的巅峰之作,高规格的品质让您尊享品质生活。
  • 业主心态
    业主因工作调动,诚心出售,价格可沟通 ,预约看房。
  • 税费分析
    个税:首套房成交价1%,
    契税:以家庭为单位,首套90㎡及以下成交价1%,90㎡以上成交价1.5%。
    二套90㎡及以下成交价1%,90㎡以上成交价2%。
    三套及以上成交价3%。
    大修基金:80元/㎡(按照建筑面积收取)详情咨询电话:183 2330 8932(微X同号)
  • 小区配套
    复地物业,小区绿化非常好,管家式服务。绿树成荫鸟语花香,让您随时呼吸道新鲜空气
  • 服务介绍
    【1】您所看到的房源为二手房。
    【2】全程接送,陪同看房,全城看房,为您送上轻松愉快的看房旅程。
    【3】经纪人看房不会产生任何费用
    【4】本人专注二手和一手新房183 2330 8932易可添加号
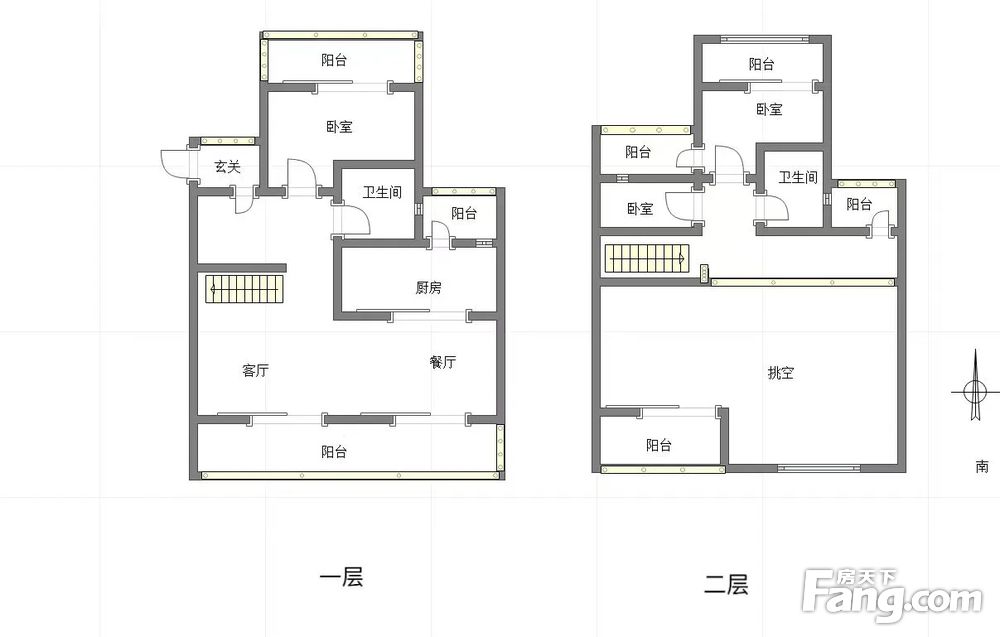
  • 户型解读
    上叠端户 房子是2+1结构,横厅板式结构。套房设计带屋顶露台,
房源图片
室内图
室内图
室内图
室内图
室内图
室内图
室内图
室内图
室内图
室内图
室内图
室内图
室内图
室内图
室内图
室内图
室内图
室内图
室内图
室内图
室内图
室内图
户型图
户型图
176
3室2厅3卫
户型
131平米
建筑面积
13435元/平米
单价
进门朝向
3层
地上层数
毛坯
装修程度
小      区
复地花屿城(距9号线宝圣湖站约786米)
区      域
重庆到家了网络科技有限公司
闪电回复
复地花屿城小区信息
参考均价12284元/平米
同比去年↓5.74%
环比上月↑0.06%
收藏
物业类型 别墅
物业费用3.3元/㎡·月
建筑类型独栋,联排,叠拼
产权年限50
建筑年代2014年
绿 化 率35%
容 积 率1.04
人车分流
总楼栋数80
总 户 数1407
小区图片
周边配套
免责声明:房源信息由网站用户提供,其真实性、合法性由信息提供者负责,最终以政府部门登记备案为准。本网站不声明或保证内容之正确性和可靠性,购买该房屋时,请谨慎核查。入学情况仅凭历史经验总结,在此不承诺升学事宜。请您在签订合同之前,切勿支付任何形式的费用,以免上当受骗。